衬胶阀门

GJ6K41X常开型气动管夹阀
GJ6K41X-6L 常开型气动管夹阀可为常开型、常闭型,又名气动夹管阀,气动胶管阀由上下铸铁、铝合金、黄瓜视频APP最新下载官网阀体,橡胶管套、大小阀杆闸板、上下导柱等零件组成。
GJ6K41X常开型气动管夹阀产品概述:
GJ6K41X-6L 常开型气动管夹阀可为常开型、常闭型,又名气动夹管阀,气动胶管阀由上下铸铁、铝合金、黄瓜视频APP最新下载官网阀体,橡胶管套、大小阀杆闸板、上下导柱等零件组成。当顺转手轮时,使大小阀杆同时带动上下茬板、压缩管套、进行关闭,反之即行开启。这样,闸板在导柱之间上下往复完成阀门开闭工作,另因橡胶管套或承力小,所以在开闭时,操作人员旋转轮时只要感到适量抵触,均达到开闭极点。切勿尽力多人补助,禁用其他工具开闭。
GJ6K41X常开型气动管夹阀性能规范:
| 适用温度 | 适用介质 |
| ≤85℃ | 矿浆、磨料、干湿型粉尘类 |
GJ6K41X常开型气动管夹阀主要零件材料:
| 名称 | 材料 |
| 阀体 | 铝合金、铸铁、铸钢 |
| 套管 | 橡胶 |
| 阀杆 | 铸铜、碳钢 |
| 压杆 | 铸铁 |
| 气缸 | 组合件 |
| 托架 | 球墨铸铁 |
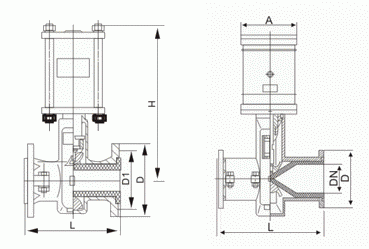
GJ6K41X常开型气动管夹阀主要外形尺寸:

| 公称通径 (DN) | 公称压力 (MPa) | 工作压力 (MPa) | L | L1 | L0 | D | D1 | D0 | H | Z-Φ | 重量 (kg) |
| 25 | 0.6 | 0.6 | 160 | 124 | 31 | 115 | 85 | 120 | 150 | 4-14 | 3 |
| 32 | 165 | 145 | 40 | *140 | 100 | 140 | 174 | 4-18 | 4.5 | ||
| 40 | 190 | 157 | 50 | *150 | 110 | 140 | 186 | 4-18 | 5.5 | ||
| 50 | 210 | 160 | 60 | 160 | 125 | 160 | 205 | 4-18 | 7.5 | ||
| 65 | 250 | 199 | 74 | 180 | 145 | 160 | 238 | 4-18 | 9.0 | ||
| 80 | 300 | 222 | 88 | 195 | 160 | 200 | 241 | 4-18 | 13.5 | ||
| 100 | 350 | 250 | 106 | 215 | 180 | 240 | 301 | 8-18 | 20 | ||
| 125 | 430 | 318 | 134 | 245 | 210 | 280 | 360 | 8-18 | 27.5 | ||
| 150 | 500 | 350 | 158 | 280 | 240 | 320 | 405 | 8-23 | 43 | ||
| 200 | 0.4 | 0.4 | 650 | 446 | 206 | 335 | 295 | 560 | 545 | 8-23 | 85 |
| 250 | 800 | 516 | 256 | *395 | 350 | 560 | 632 | 12-23 | 138 | ||
| 300 | 950 | 562 | 304 | *445 | 400 | 620 | 741 | 12-23 | 195 |
相关产品


