黄瓜视频APP最新下载官网水力控制阀

800X黄瓜视频APP最新下载官网压差旁通阀产品概述:
800X-10/16P 黄瓜视频APP最新下载官网压差旁通阀是一种用于空调系统供/回水之间以平衡压差的阀门。该阀门可提高系统的利用率,保持压差的互定直,并可较大限度地降低系统的噪音,以及过大压差对设备造成的损坏。800X压差旁通平衡阀优越于其他平衡阀的地方在于它没有执行机构,完全介质自身的压力差来达到平衡系统的功能,节约能源及安装空间,是一种智能型阀门。
800X 黄瓜视频APP最新下载官网压差旁通阀特点;
800X-10/16P 黄瓜视频APP最新下载官网压差旁通阀又叫作压差旁通平衡阀,它是一种用于空调系统供/回水之间以平衡压差的阀门。该阀门可提高系统的利用率,保持压差的互定直,并可较大限度地降低系统的噪音,以及过大压差对设备造成的损坏。
800X黄瓜视频APP最新下载官网压差旁通阀安装注意事项;

1、装卸:800X压差旁通平衡阀应小心装卸,建议用软的绳索起吊,以免损坏阀及配管,保护涂装层,阀门应小心地放落地下,不能直接落于地面。
2、安装前的检查:在装卸到目的地后,首先按ACOL提供的说明书上的内容检查确认,配管是否正确,连接是否可靠,运输过程中有无对阀门进行损坏,各种零件是否完整。
3、旁通阀安装前应清理管道中的杂质,检查相应的法兰应与阀门的法兰的压力等级,公称通径相一致,以保持管路的畅通。
4、在压差旁通阀前后,应安装两只闸阀,以检测及维修时使用。
5、压差导向阀之感应压力的管道应直接接在供水及回水管道上,以达到能准确反应供回管之间的压差,为安装使用的方便,可在感应管道上装上小球阀。
6、压差向导阀上两个接压口,上面一个口接到回水管道上,下面一个口接到供水管道上。
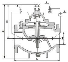
800X黄瓜视频APP最新下载官网压差旁通阀结构及连接尺寸参数;
| 公称通径 (mm) | 尺 寸(mm) | ||
| L | H1 | H | |
| 20 | 150 | 126 | 520 |
| 25 | 160 | 126 | 520 |
| 32 | 180 | 126 | 520 |
| 40 | 200 | 160 | 610 |
| 50 | 203 | 160 | 610 |
| 65 | 216 | 180 | 625 |
| 80 | 241 | 200 | 642 |
| 100 | 292 | 270 | 750 |
| 125 | 330 | 310 | 808 |
| 150 | 356 | 320 | 864 |
| 200 | 495 | 370 | 1135 |
| 250 | 622 | 430 | 1185 |
| 300 | 698 | 480 | 1325 |
| 350 | 787 | 525 | 1385 |
| 400 | 914 | 580 | 1445 |
| 450 | 978 | 635 | 1445 |
相关产品


